Продается 3-х комн. квартира, 78.5 кв.м., 5/5 эт
Обзор№ - 370
| Стоимость | 5 000 000 |
|---|---|
| Ремонт | Требует ремонта |
| Балкон | Балкон |
| Доля в квартире | Нет |
| Онлайн показ | могу провести |
| Статус Недвижимости Авито | Квартира |
| Право собственности | Собственник |
| Тип парковки | Открытая во дворе |
| Способ связи avito | По телефону и в сообщениях |
| Есть ли право собственности | Есть |
| Тип дома cian | Кирпичный |
| Комнат в квартире | 3 |
| Площадь, кв.м. | 78.5 |
| Жилая площадь | 54.6 |
| Площадь кухни, кв.м. | 8.7 |
| Этаж | 5 |
| Этажность | 5 |
| Материал стен | Кирпич |
Адрес
| Населенный пункт | Сызрань |
|---|---|
| Район города | центр |
| Улица | улица Московская |
| Номер дома | 27 |
В избранное Трешка на Московской
Продается 3-х комнатная квартира, ул. Московская
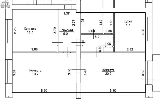
Просторная квартира общей площадью 78,5 кв.м, расположенная на пятом этаже пятиэтажного дома. Высота потолков – 3 метра. Комнаты все раздельные: 20,2 кв.м, 19,7 кв.м и 14,7 кв.м. Кухня – 8,7 кв.м. Раздельный санузел. Квартира требует ремонта, что позволяет вам создать интерьер своей мечты.
В доме недавно выполнен капитальный ремонт: заменены крыша и вся система отопления, что гарантирует комфортное проживание.
Стоимость квартиры – 5 000 000 рублей.
Отличное местоположение для семьи с детьми: рядом находятся рынок, торговый центр "Гера и К", автовокзал и железнодорожный вокзал.
квартира имеет отличную транспортную доступность, что позволит вам без труда добираться до любых районов города. Не упустите возможность стать владельцем этой квартиры
Звоните и записывайтесь на просмотр!

















